Копировать ссылку
Пожаловаться
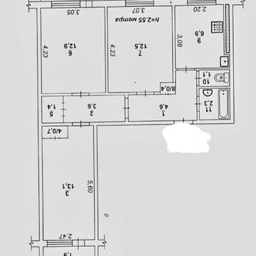
Квартира має вдале планування з просторою кухнею, холом, великим кутовим балконом та окремими кімнатами. Зроблено капітальний ремонт, замінено всі комунікації. Санвузол роздільний. Квартира має автономне газове опалення, що дозволяє регулювати температуру в будинку. При продажі залишаються всі меблі та техніка. Будинок житлового фонду 80-90-х років. Будинок розташований в районі з розвиненою інфраструктурою. Поблизу є новий магазин АТБ.


























