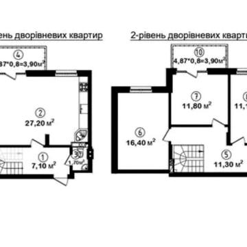
Продаж без комісії стильної дворівневої 3к квартири у житловому комплексі «Казка», розташована за адресою вул. Академіка Лебедєва, 1, у тихому і зеленому Голосіївському районі Києва, Феофанія на Правому березі. Загальна площа квартири становить 114 м², житлова 52,3 м², кухня 16,2 м², розміщена на 7 та 8 поверхах цегляного будинку 2016 року побудови. Квартира виконана з капітальним ремонтом, повністю укомплектована якісними меблями та сучасною побутовою технікою. Раціональне і зручне планування передбачає на першому рівні простору кухню з балконом, з якої відкривається приголомшливий вид на зелений район, санвузол із душовою кабіною та продумані вбудовані системи зберігання. Другий рівень складається з трьох окремих кімнат, вітальні з каміном та санвузол із ванною. Така організація простору ідеально підходить для комфортного проживання сім’ї або пари, яка цінує простір і зручність. Житловий комплекс «Казка» є закритим клубним кварталом комфорт-класу, що складається з дев’яти будинків різної поверховості. Комплекс оснащений цілодобовою охороною, відеоспостереженням, а в’їзд контролюється через шлагбаум за картками доступу. Територія доглянута, з ландшафтним дизайном, дитячими та спортивними майданчиками, футбольним полем і власним дитячим садком. Для мешканців працюють продуктові магазини, аптека, салон краси, піцерія, кафе, медичні заклади та відділення Нової Пошти. Локація кварталу надзвичайно вигідна — це екологічно чиста зона з великою кількістю зелених насаджень. Поруч розташований знаменитий парк «Феофанія», Свято-Пантелеймонівський монастир і музей під відкритим небом Пирогово. До станції метро «Іподром» можна дістатися за 12 хвилин на громадському транспорті, що забезпечує швидке сполучення з іншими районами міста. Великий досвід допомоги по купівлі квартир за державними програмами, безготівковий розрахунок 1) Єоселя (Є-оселя), Євідновлення, Сертифікат 2) Житло для ВПО та військових (постанова 280 та інше), Молодіжний кредит Вартість квартири — 154000 доларів США. Для організації перегляду звертайтесь Без комісії!!!
























