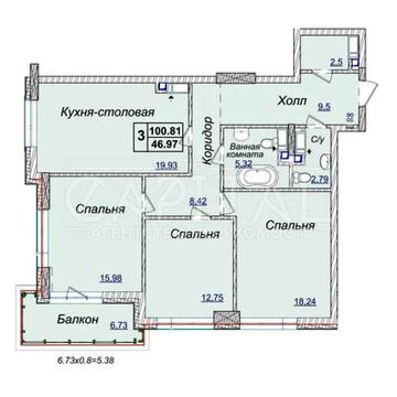
Квартира має роздільне планування. Встановлені лічильники на електрику, воду, опалення та газ. Квартира після будівельників. Можливе оформлення право власності та продаж під програми: кредит, Є-оселя, Є-Відновлення та постанови. Без комісії для покупця. Документи на руках. Власник в Києві. ЖК Кришталеві джерела введений в експлуатацію в 2 кварталі 2022 року. Збудований по монолітно-каркасній технології зі стінами з цегли, утеплювачем та панорамними вікнами. У будинку є ліфти від європейського виробника, підвищена звуко- та теплоізоляція зовнішніх стін. Висота стелі 2,7м. Територія комплексу закрита від сторонніх, охороняється. Є власна котельня. ЖК розташований між садово-парковим комплексом Феофанія та Хотівським лісом в екологічно чистій зоні Києва. Поруч розташовані святі місця (храм Святого Пантелеймона), цілющі джерела, озера, супермаркет "Фора". Недалеко до ст.м. Теремки та Іподром. Школа в пішій доступності. Є два садочки. Квартира простора, має чудовий вид на місто. Кімнати мають площу 18, 16 та 9 кв.м. Кухня-вітальня площею 28 кв.м. Є два санвузли.




























