Копировать ссылку
Пожаловаться
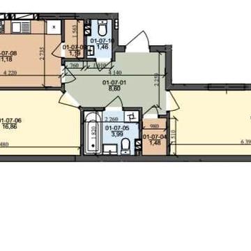
Квартира має двостороннє планування зі східною та західною орієнтацією, що забезпечує багато світла протягом дня. Є одна засклена лоджія та два відкриті балкони. Санвузол роздільний, також є простора гардеробна. Виконана чистова стяжка підлоги, квартира готова до ремонту. Квартира має індивідуальне опалення з встановленим двофункційним газовим котлом (газ запущений). Проведено розводку опалення, встановлені радіатори. Всі комунікації підключені. Послуги ріелтора оплачуються додатково. Будинок зданий і заселений. Квартира від забудовника «Галжитлобуд».




























