Скопіювати посилання
Поскаржитися
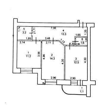
Квартира під ремонт, що дає можливість облаштувати простір під себе. Кімнати суміжні, санвузол суміжний. Є балкон. Можливе перепланування. Централізоване опалення, газова колонка (гаряча вода завжди). Залишаються пральна машина та плита. Можливий продаж під сертифікат єВідновлення. Ідеально як для себе, так і під інвестицію. Тип будинку - хрущовка. Гарна інфраструктура поруч: магазини, школи, садки, парк, зупинка транспорту. Сонячна сторона - світло та тепло навіть взимку.




























