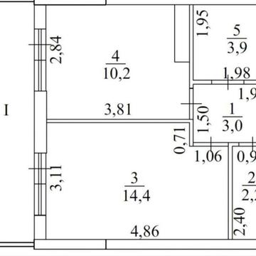
Пропонується до продажу однокімнатна квартира з окремими кімнатами та кухнею площею 20.42 кв. м. Загальна площа квартири становить 41.5 кв. м, житлова площа - 10 кв. м. Висота стель - 2.8 м. Стан ремонту не вказано, але квартира знаходиться у новобудові. Будинок обладнаний даховою котельнею, що забезпечує опалення. Інформація про водопостачання, електрику та лічильники відсутня. Інформація про наявність меблів та техніки в квартирі відсутня. Квартира пропонується до продажу. Умови купівлі, необхідність застави або додаткові вимоги не вказані. Будинок розташований у новобудові Акварель 3 від забудовника Our Story, клас комфорт. Будинок монолітно-каркасний, з залізобетонними перекриттями, має 17 поверхів. Підїзд до будинку асфальтований. На території ЖК є відеоспостереження, гостьовий паркінг, дитячий майданчик, паркова зона, паркувальні місця та підземний паркінг. Квартира розташована у Приморському районі Одеси, мікрорайон Молдованка. Поруч знаходяться зупинки громадського транспорту, супермаркети. Детальніша інформація про навколишню інфраструктуру відсутня. З квартири відкривається вид на фасад будинку. Висота стель - 2.8 м. Квартира може бути як затишним житлом, так і вигідним інвестиційним обєктом.




























