Скопіювати посилання
Поскаржитися
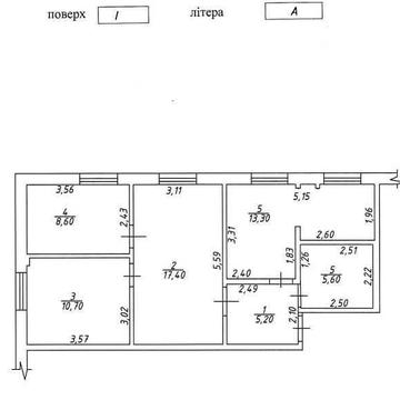
Квартира має роздільне планування. Санвузол також роздільний. Ремонт у хорошому житловому стані. Встановлено автономне газове опалення. При продажу залишаються часткові меблі. Вартість квартири початкова, можливо вести торг. Комісія оплачується окремо. Поблизу будинку розташовані дитячий садок, школа, супермаркет, ринок та зупинка громадського транспорту. Встановлено металопластикові вікна. Є балкон, лоджія, ванна, ліфт та меблі на кухні.




























