Скопіювати посилання
Поскаржитися
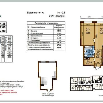
Квартира має роздільне планування. Стан ремонту - після будівельників, що означає вільне планування від забудовника. Будинок обладнаний власною котельнею для системи опалення. Присутній генератор в будинку. Продаж здійснюється шляхом переуступки в офісі забудовника, витрати на оформлення сплачує власник. Будинок буде зданий в 4 кварталі 2026 року. Житловий фонд від 2021 року. Будинок 10.10. Будинок розташований за 3 хвилини від майбутньої станції метро. У пішій доступності знаходиться ТРЦ Ретровіль з різноманітними магазинами. Зручна транспортна розвязка забезпечує швидкий доступ до центру та інших районів міста. Квартира має 3 кімнати та 2 санвузли. Передбачено гардероб.
генератор























