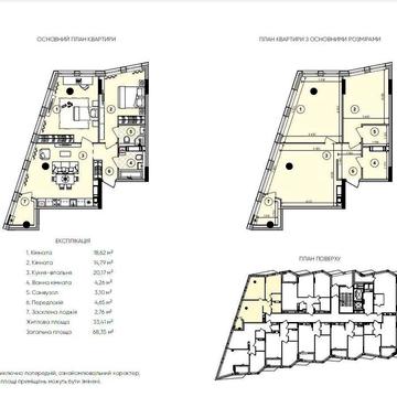
Продаж 2 кімнатноі квартири від надійного забудовника DIM, ЖК "Lucky Land" біля ТРЦ Lavina Mall. Адреса: місто Київ, Cвятошинський район вулиця Берковецька 6, будинок 3 введений в експлуатацію, можна оформлювати право власності і одразу робити ремонт. Загальна площа 67 кв.м, після будівельників, вільне планування. Розташована на зручному 3-му поверсі, 13 поверхового будинку ( є генератор на ліфт) Вікна квартири виходять у двір. - 3-й поверх із 13; - 2 окремі кімнати; - кухня + вітальня; - 2 санвузли; - лоджія. Всі централізовані комунікації, прямі договори. ЖК Lucky Land - це новий ЖК комфорт класу, що знаходиться по сусідству з Lavina Mall і поряд зі 100 га хвойного лісу. Архітектура та якість від DIM Будинки виконані в сучасному архітектурному стилі з використанням якісних матеріалів і ретельно продуманих деталей. Кожна квартира має: • Великі панорамні вікна з енергозберігаючим склом; • Металеві двері; • Стяжку підлоги та утеплення; • Підключення до електро-котла, системи вентиляції, води й електрики. ⸻ Локація — перевага, яку відчуваєш щодня Lucky Land знаходиться у Святошинському районі, поруч із розвиненою інфраструктурою: Розваги та покупки: • ТРЦ Lavina Mall, парк Галактика, Ашан, Сільпо, Епіцентр. Ресторани та кафе: • У самому комплексі — власні кав’ярні, поруч — ресторан EGERSUND. Освіта та здоров’я: • Школи №203, №95, №162, №175; гімназії «Престиж» і «Прем’єр», КМДШ. • Приватні садочки, клініки Sempa, 911 Smart Clinic, Rich Health. Транспортна доступність: • 7 хвилин транспортом до метро Академмістечко, • 10 хвилин — до Сирець. • Зручний виїзд на Кільцеву дорогу або вулицю Стеценка. ⸻ Інвестиційна привабливість Lucky Land — це комплекс із великим потенціалом росту вартості. Розвиток території, наявність зелених зон, близькість до Lavina Mall і нові комерційні простори створюють стабільний попит на оренду та купівлю квартир. ⸻ Ваша квартира в Lucky Land Ця квартира — ідеальний варіант для життя або інвестиції. Великі вікна наповнюють простір світлом, а якісні матеріали забезпечують комфорт і довговічність. Lucky Land — місце, де комфорт, природа і майбутнє зливаються в гармонію. Ціна: 79.000 у.о США, розглянемо державні програми.




























