Копировать ссылку
Пожаловаться
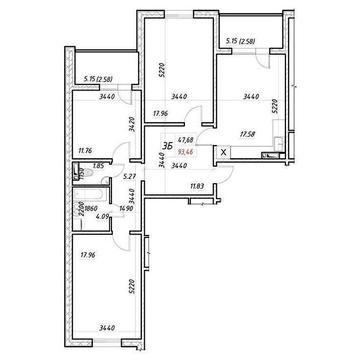
Квартира має роздільне планування. Є великий хол, три засклені балкони. Санвузол роздільний. Зроблено косметичний ремонт. Квартира підключена до централізованої системи опалення, центральної каналізації, електрики та водопроводу. Є вивіз відходів. Квартира продається з меблями та технікою. На кухні є меблі. Є гардероб. Чистий продаж. Квартира вільна. Будинок житлового фонду 91-2000-х років серії Т4. Є консьєрж, пасажирський та вантажний ліфти. Квартира розташована поблизу станції метро Вирлиця.
владелец




























