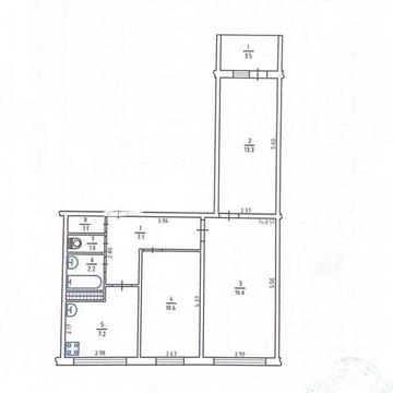
Квартира має продумане планування з двома окремими кімнатами та просторим холом. Санвузол роздільний, є ванна. Також є комора-гардеробна. Квартира знаходиться у хорошому житловому стані, акуратна та доглянута. У квартирі підключено централізоване опалення та газ. Встановлені лічильники на воду та електроенергію. Меблів та техніки не вказано. Можливий безготівковий розрахунок, включаючи програми, кредит чи сертифікат єВідновлення. Ключі на руках, покази оперативні за домовленістю. Без комісії для покупця. Будинок 1973 року побудови, типу "Чешка", утеплений, керамзіто-бетон. Висота стелі 2,65 м. Квартира розташована всередині будинку, неторцева. Охайне доглянуте парадне з кодовим замком та домофоном. У дворі є місце для паркування. Розвинена інфраструктура: поруч магазини, парк Юність, ринок Дніпро, школи, дитячі садки, медичні та освітні установи, відділення банків та Нової пошти. Також є кінотеатр Лейпциг, ТРЦ Квадрат, ТРЦ Апрель, МакДональдс, Велмар. Зручне транспортне сполучення, до метро Політехнічний інститут 15 хвилин на швидкісному трамваї. Зупинки громадського транспорту біля будинку. Квартира має просторий засклений балкон площею 3,5 м2. Вікна нові металопластикові. Є комора-гардеробна. Встановлено пожежну сигналізацію. Також є кондиціонер.







