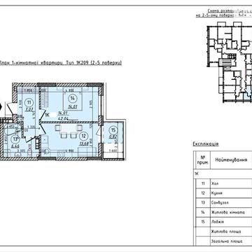
Продається 3-кімнатна квартира від забудовника ЖК 44 AVENUE, м. Ужгород, вул. Мукачівська 44. Продаж без комісії агентству! 44 AVENUE – розміщений на території 1 гектару. Це перший житловий комплекс в Україні, що підтримує підключення до сонячних панелей. Також завдяки системі “розумний дім” ви зможете керувати опаленням, домофоном і шлагбаумом прямо зі смартфона. Буде встановлено безшумний ліфт і відеонагляд для забезпечення вашого комфорту та безпеки. Жити в 44 AVENUE – означає бути в центрі подій. ЖК розташований у самому серці міста, поруч із історичними пам’ятками, мальовничою набережною та престижними закладами освіти. У пішій доступності – школи, садочки, лікерні, фітнес-зал, магазини та кафе. Також на території ЖК є сучасне бомбосховище та підземний паркінг. Ви отримуєте не житло, а унікальну атмосферу міського життя з доступом до всього необхідного. Будівництво 1-2 черги розпочато. Здача об’єкту в експлуатацію 4-квартал 2026 р. Характеристика будівництва: Зовні будинок 7-поверховий, побудований по монолітно-каркасній технології з використанням червоної цегли, фасад вентильований із травертину, утепленний мінватою, панорамні енергозберігаючі вікна. 1 поверх – комерція, 2-7 житлові. Всередині забудовником надається чистова стяжка, електрокотел + батареї, стіни поштукатурені, розведена сантехніка, заведений силовий кабель без розводки, якісні вхідні двері. До вашої уваги пропонуємо квартиру площею 79,97 м.кв. Також під час будівництва є можливість змінити планування. Ціна при 100% оплаті 1100 $/м.кв. Ціна при 50% оплаті 1150 $/м.кв. Ціна при 30% оплаті 1200 $/м.кв. Можна без внесення задатку. Розтермінування надається до здачі об’єкту в експлуатацію. Код: 35978










